Funkce uživatele
Moje oblíbené nemovitosti Moje oblíbené nemovitosti Moje filtry Moje filtry Upravit profil Upravit profil Vložit inzerát Vložit inzerát
Region
mapa

12 000 Kč za měsíc

D

Méně úsporná

  • Elektřina a internet převod na nájemce.
Do oblíbených
Do oblíbených
Nemovitost nabízí
Drahoslava Bosáková
  • *
  • *
  • *
  • *
  • *
3 hlasy

Vyklízim.cz

Nejlevnější vyklízení v Praze a okolí

Malování

Zajištění malíře už od 2.500 Kč

Základní informace

Dopravní spojení Autobus, Vlak, MHD, Dálnice
Konstrukce Panelová
Cena 12 000 Kč za měsíc
Plocha pozemku 41 m²
Plocha zastavěná 295 m²
Elektřina 230 V
ID nemovitosti 428158
Vlastnictví soukromé
Plocha obytná 41 m²
Patro 4.
Kanalizace Veřejná kanalizace
Datum vložení před 8 dny
Stav nemovitosti Bezvadný
Plocha užitná 41 m²
Energetická náročnost D - Méně úsporná

Popis nemovitosti

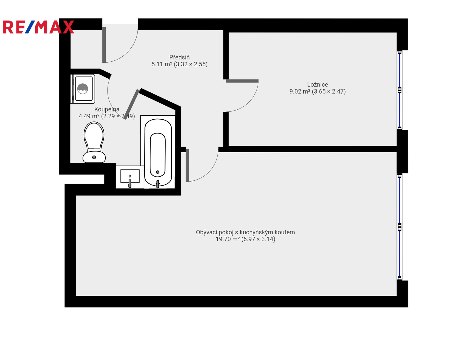
Nabízím k pronájmu velmi pěkný, kompletně zrekonstruovaný byt o dispozici 2+kk, 41 m², který se nachází ve 4. NP panelového domu v žádané části Příbrami IV – ulice Nádražní. Byt je situován v klidné lokalitě se spoustou zeleně, přesto jen pár minut chůze od centra města.

Byt prošel zdařilou celkovou rekonstrukcí a pronajímá se včetně veškerého zařízení, což umožňuje pohodlné a okamžité bydlení.

Lokalita nabízí veškerou občanskou vybavenost v pěší dostupnosti: autobusové a vlakové nádraží, OC Skalka, Kaufland, Lidl, plavecký bazén, divadlo i kino.

Finanční podmínky: nájemné 12.000 Kč / měsíc, služby 3.600 Kč / měsíc, elektřina a internet: nájemce si přepisuje na sebe u dodavatelů. Kauce ve výši 30.000 Kč
Provize RK: 12.000 Kč

Poloha na mapě

Dojezdová vzdálenost

Zadejte cílovou adresu
Zadejte cílovou adresu
Zadejte cílovou adresu

Nemovitost nabízí

 Drahoslava Bosáková
Drahoslava Bosáková
  • *
  • *
  • *
  • *
  • *
100 %

3 hodnocení

Telefon zobrazit telefon

Nemovitost nabízí

 Drahoslava Bosáková
Drahoslava Bosáková
Telefon zobrazit telefon